气动三通球阀
- 阀门型号:Q644F,Q645F,Q614F,Q615F
- 通径规格:法兰DN15~DN300,螺纹DN15~DN50
- 结构形式:三通L型,三通T型
- 阀体材质:碳钢WCB、不锈钢304、316、316L等
- 公称压力:PN10、PN16、PN25、PN40、PN64
- 适用温度:-40℃~+450℃
- 应用范围:气体、水、蒸汽、液体、油品、腐蚀性介质等
- 产品特点:一阀多用,分L型和T型,达到换向、分配、合流、分流
气动三通球阀简介:
气动三通球阀是用于管道中介质换向、合流及分流的作用,主要由T型或L型三通球阀与气动执行器连接组成,按连接方式不同可分为法兰及内螺纹。气动三通L型球阀是对两条相互垂直的通道进行介质流向的切换或截断,起到分配作用,而T型球阀不仅可对介质流向进行切换,还可以使三个通道互相连通或关闭其中任意一条通道,起到分流、合流作用。可根据工况需要,在气动三通球阀执行器上加装阀门定位器及其它相关配件,即可控制球阀球芯的运转,达到对管路中介质的自动化控制。
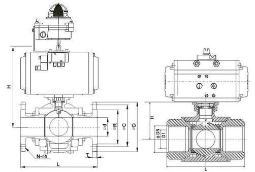
气动法兰三通球阀 气动内螺纹三通球阀
气动三通球阀优点:1、可选用不同连接形式,分为气动法兰三通球阀和气动螺纹三通球阀,满足不同使用工况。
2、密封效果极佳,采用软密封四氟乙烯弹性变形可达到无泄漏密封。
3、一阀多用:可制成L型通口,也可制成T型通口,达到分配、合流、分流等功能。
4、气动三通球阀安装方便,可用任一通口作为介质的流通入口,并且无泄漏。
5、广泛适用于环保、油品、冶金、蒸汽、能源、造纸、食品等管路系统中对介质进行流向改变或达到对介质分流或混合。
气动三通球阀标准规范:
1.设计和制造:GB/T12237-1989;APl608。 2.检验和试验:GB/T13927-1992;APl598。 3.法兰连接:JB/T79]一2-1994;ASME/ANSIB165。 4.结构长度:JD-2002回讯器:也叫限位开关,远程反馈开关信号(防爆) 电磁阀:双作用选二位五通、单作用选二位三通(防爆) 三联件:可对气源稳压、过滤、气缸加润滑油 阀门定位器:输入4~20mA信号,实现阀门调节功能YT-1000R | 
气动法兰三通球阀结构图 气动内螺纹三通球阀结构图 |
气动三通球阀技术参数:| 公称通径 | DN10~DN300(mm) (螺纹1/2"~2") |
| 公称压力 | PN1.0、1.6、2.5、4.0、6.4MPa |
| 驱动形式 | 压缩空气4-7bar |
| 连接方式 | 法兰、内螺纹 |
| 结构形式 | L型、T型 |
| 动作范围 | 0-90度(其他定制) |
| 使用温度 | -40℃~+450℃(可选) |
| 阀门材质 | 碳钢WCB、不锈钢304、316、316L等 |
| 控制方式 | 开关型,调节型(定位器4-20mA) |
| 作用形式 | 单作用弹簧复位(常开型,常闭型),双作用(气开气关) |
气动三通球阀流向原理说明:
气动三通球阀根据结构形式及流通方向不同分为L型和T型,介质流通方向图如下。
T型三通球阀流向图 L型三通球阀流向图
L型三通球阀只能连接或截断两条相互垂直正交的管道,不能同时保持第三条管道的相互连通,只起到分配作用。
T型三通球阀能使三条正交的管道相互联通或切断任意第三条通道,达到两进一出或一进两出的的功能,起到分流、合流作用。
气动三通球阀性能参数:| 公称通径DN(mm) | DN15-300 |
| 公称压力 | PN(MPa) | 1.0 | 1.6 | 2.5 | 4.0 | 6.4 |
| 试验压力 | 强度试验 | 1.5 | 2.4 | 3.8 | 6.0 | 9.60 |
| 密封试验 | 1.1 | 1.8 | 2.8 | 4.4 | 7.04 |
| 低压气密试验 | 0.4~0.7 |
| 适用介质 | 气体、水、油品、蒸汽或腐蚀性介质(常温,低温,高温) |